
Nhà phố cổ điển 3 tầng 1 tum này là dự án thiết kế có sự đầu tư rất kỹ lưỡng.Đối với nhà phố, diện tích khu đất hẹp nên chúng ta phải lên nhiều lầu để khai thác được tối đa không gian sử dụng, và nằm trong quy mô được cho phép. Thông dụng đa phần nhất hiện nay ở thành phố là 3 tầng 1 tum.
Được sự nghiên cứu kỹ lưỡng của Ngôi Nhà Hoàn Hảo, công ty đã thiết kế dự án nhà liền kề cho anh Minh-Thủ Đức, và được CĐT rất hài lòng.
Đây là dự án nhà phố cổ điển 3 tầng 1 tum đẹp, và rất nổi bật. Mặt tiền đường cong nhẹ, nên chúng tôi đã thiết kế các ngôi nhà dật cấp theo, biên độ cong của đường, và ở hướng tiếp cận đường lớn ở bên trái nhìn vào sẽ thấy được hết toàn bộ dự án.Tạo vị thế mặt tiền tổng thể đẹp giúp cho CĐT sau này trong quá trình kinh doanh xây dựng.
Để những đứa con tinh thần được người sử dụng hài lòng là một niềm hạnh phúc rất lớn dành cho chúng tôi. Mỗi sản phẩm đẹp hoàn thành là một niềm vui mới. Đối với công ty và đặc biệt cho kiến trúc sư, và các kỹ sư thiết kế nên công trình.
Quý khách xem về dự án: n
-Phối cảnh kiến trúc:

-Mặt bằng tầng 1 của 2 căn điển hình:

-Về mặt bằng tầng 2 của 2 căn điển hình:

-Mặt bằng của tầng 3 của 2 căn điển hình:

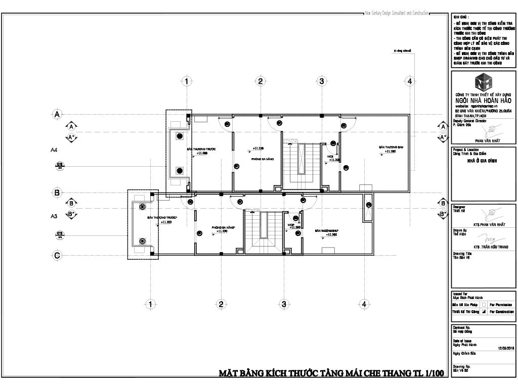
-Mặt bằng của tầng mái che thang của 2 căn điển hình:


XEM TIẾP: THI CÔNG XÂY DỰNG NP001, NHÀ ĐẸP, BIỆT THỰ ĐẸP
Để có một công trình biệt thự đẹp. Thì đầu tiên việc quan trọng nhất là bạn phải tìm được cho mình một nhà thầu chất lượng, uy tín. Và Ngôi Nhà Hoàn Hảo cũng là một ứng viên sáng giá cho sự lựa chọn đó. Bời vì chúng tôi có:
Đội ngũ kiến trúc sự kinh nghiệm và chuyên môn cực cao. Luôn trao dồi và phát triển những ý tưởng, luôn đi đầu trong xu hướng thiết kế kiến trúc.
Luôn nhận được các gói ưu đãi từ Ngôi Nhà Hoàn Hảo.
Một ngôi nhà đối với chúng tôi đều là những đứa con tinh thần, vì vậy tỉ mỉ từ đầu đến cuối cho khách hàng. Vì thế chắc hẳn không để các bạn phải hối tiếc khi đã chọn chúng tôi. Hãy liên hệ ngay Ngôi Nhà Hoàn Hảo để tham khảo thêm vô vàn biệt thự kiến trúc đẹp nhé!